产品中心
Menu微孔无残夜过滤器

微孔无残夜过滤器是目前最有效的固液分离设备之一,它利用高分子PE、PA滤芯为过滤介质,使液体中的悬浮物被全部收集在滤芯的表面,清夜经过过滤芯进入清液腔,从而达到有效的固液分离。
微孔无残夜过滤器产品特点:
1、含固量较多且出干渣的精密液体过滤器
2、0.3um以上颗粒一次性过滤
3、快捷的气体反吹下渣同时再生滤管
4、化学性能优越的刚性微孔PE、PA滤芯能长寿命使用,大大降低行运费用
5、密封过滤,安全生产,无气味外溢,生产环境改善且占地面积小
6、特殊设计实现了大口径的气动排渣底盖的快速闭启
7、可实现自动化生产
8、根据工艺要求可在机体外设保温夹套,机体内衬防腐材料涂层
微孔无残夜过滤器应用领域:
1、超细产品(如催化剂、分子筛、超细磁粉等)的过滤与洗涤
2、生物发酵液的精密过滤与洗涤
3、粉末状活性炭精密过滤
4、糖液的精密过滤
5、氯碱与纯碱生产上的一次或二次盐水精密过滤
6、烧碱液去结晶盐的精密过滤,碳酸氢钠溶液提高澄明度的精密过滤
7、化纤生产、焦化生产及石化等生产上的液体脱硫精密过滤
8、重金属废水(络、铜、镍、锌、铅、镉)的精密过滤
9、化工废水中回收化工产品的精密过滤(例如炭黑纯碱与碳酸氢钠)
10、含氟、硫、磷废水、乳胶漆废水的精密过滤
11、除尘洗涤废水的精密过滤,可以循环使用
12、油田注水过滤
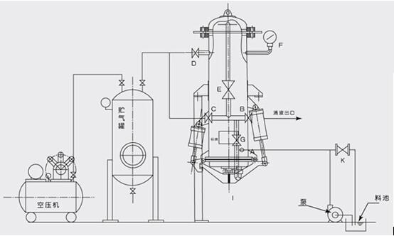
微孔无残夜过滤器流程图:

微孔无残夜过滤器主要技术参数:

【更新时间:2026-3-7】